New house3 min StaNear SkytreeAsakusa13 ppl/Katsushika-ku Tokyo | House in Katsushika-ku

3 Bedroom House in Tateishi, Katsushika-ku
Just a 3minute walk from Keisei Tateishi Station This newly built entire rental house is familyfriendly with a large projector in the 3rdfloor bedroom
Spacious living dining kitchen areas for large families or groups New furniture hotelgrade linens for cleanliness
Near Asakusa Skytree for easy sightseeing
If you have any other questions or concerns please feel free to contact us by message at any time
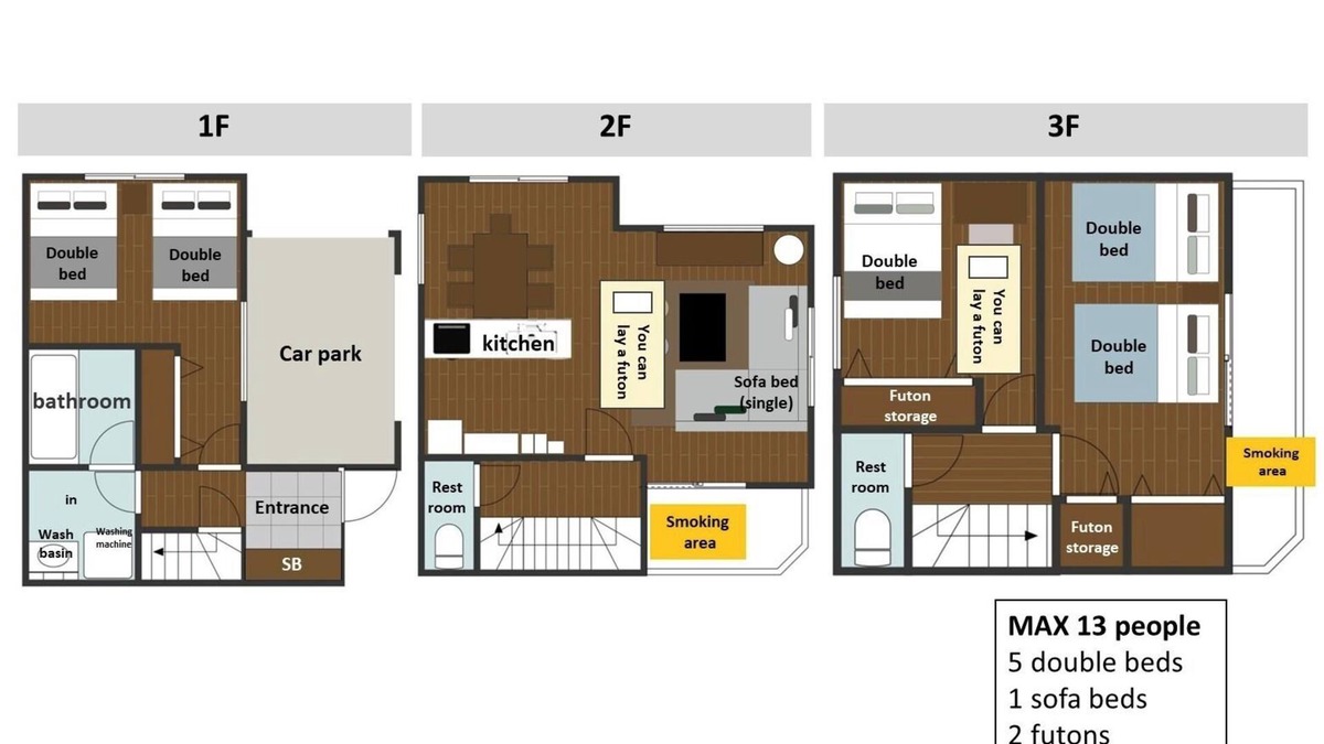
We look forward to hearing from you / 3story 3LDK layout
1st Floor
Bedroom 1 2 double beds
Bathroom
2nd Floor
Living room 1 single sofa bed 1 futon
Kitchen
Toilet
3rd Floor
Bedroom 2 1 double bed 1 futon
Bedroom 3 2 double beds
Toilet
If you would like a receipt that is compatible with the invoice system, please contact the property directly.
This 3 Bedrooms House provides accommodation with Designated Smoking Area, TV, Bedding/Linens, for your convenience. This House features many amenities for guests who want to stay for a few days, a weekend or probably a longer vacation with family, friends or group. The rental House has 3 Bedrooms and 1 Bathroom to make you feel right at home.
Check to see if this House has the amenities you need and a location that makes this a great choice to stay in Tateishi. Enjoy your stay in Tateishi at this House.
Amenities
Facility Overview
-
Air conditioning
-
Heating
-
Towels provided
-
1 bathroom
-
Hair dryer
-
3 bedrooms
-
Bed sheets provided
-
Sofa bed
-
Refrigerator
-
Cookware/dishes/utensils
-
Stovetop
-
Microwave
-
Laundry facilities
-
Washing machine and dryer
-
Onsite parking
-
No pets allowed
-
Designated smoking areas
-
TV with cable/satellite service
-
Unit size: 904 sq ft (84 sq m)
-
Japanese
-
English
-
Desk
-
Iron/ironing board
-
Free WiFi
-
Fire extinguisher
-
First aid kit
-
Smoke detector installed (host has indicated there is a smoke detector on the property)
-
Carbon monoxide detector not reported (host has not indicated whether there is a carbon monoxide detector on the property; consider bringing a portable detector)
Policies
FAQ's
Is this Tateishi house pet-friendly for guests?
No, pets are not allowed at this property. Check the guest reviews to learn what guests had to share.
Does the Tateishi house have a swimming pool?
No, this Tateishi house does not have a swimming pool. Check the Facility Overview section for details about the pool and other available facilities.
How much does it cost per night to stay in Tateishi house?
Best-rates for the Tateishi house starts from $483 per night with includes Air Conditioner, Parking, Designated Smoking Area, TV, Bedding/Linens, Fireplace/Heating, Guest Services, Internet, Wellness Facilities, Child Friendly, Kitchen, Laundry With all other amenities. Float Homes offers a wide range of floating homes, houseboats, and water chalets, ensuring each traveler finds their ideal water escape, whether planning a water getaway, a family vacation, or a pet-friendly retreat with the whole group.
Is Tateishi house a family-friendly place to stay?
Based on the information we have received from the owner or our partner, this is considered to be a family-friendly property. Families have rated this house 2 stars or guests have recommended them suitable for families. As reported by the owner or manager, the house has specified that children are welcome. Please see details about suitability for your family or inquire with the property to learn more.
Is the Tateishi house wheelchair accessible or offer services for disabled guests?
Based on the information received from our partner, the Tateishi house has not specified they are wheelchair accessible. Likewise, there is not an elevator specified as being available at the property. Specific accessibility details may be addressed in the property details section of this page.
What is the minimum night stay policy for the Tateishi house?
Based on the information reported by the owner or manager, the Tateishi house indicates 1 day stay policy at this house. Guests are cautioned that the minimum stay policy may differ based on seasonality or availability and may be at the discretion of the owner or manager.
What cancellation policy is in place for Tateishi house?
Based on the information reported by the owner or manager, details for the cancellation policy for the Tateishi house are as follows: Cancellation policy Guests are cautioned that the cancellation policy may differ based on seasonality, availability, or current travel restrictions. Guests should also be aware that this policy may be subject to change and should be confirmed prior to booking. More details may be available on this page in the property description. However, early check-in or late check-out can sometimes be negotiated between the guest and the owner or the manager of this property.